Habitation SRB

Construction d'une habitation unifamiliale à Bonlez

Maître d’ouvrage privé
Lieu Bonlez, Brabant Wallon, Belgique
Date 2015 - 2017
Surface 173 m2 
Budget -
Photographe Nicolas da Silva Lucas

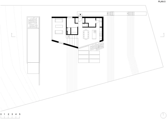
Installée sur un terrain en pente, cette maison profite de la topographie du lieu pour s’organiser en demi-niveaux et créer une continuité spatiale entre les espaces de vie.

En réponse aux demi-niveaux intérieurs, le terrain est architecturé en terrasse et talus. Le jardin offre une succession de séquences abritant chacune ses propres fonctions en relation avec la maison.

La cuisine et la salle à manger s’ouvrent généreusement vers la terrasse et le jardin d’herbes aromatiques. Le salon, au même niveau que le potager et la piscine naturelle, profite d’une vue frontale sur le dernier talus, un jardin sauvage ponctué de quelques arbres fruitiers.

Une fois ancré au sol, ce polygone rayonne et profite des multiples orientations. Intérieurement, il génère une dynamique spatiale et une transparence visuelle entre les trois plateaux.

Ce monolithe en ardoise naturelle assure un rapport sensible avec le monde végétal et vibre avec les variations de lumière.

A l’intérieur, les matières brutes comme le béton et les matières naturelles comme le bois dialoguent avec la couleur. 

La matérialité et la couleur sont associées au concept spatial. De cette manière, le bardage bois intérieur définit les espaces de jour des espaces de nuit tout en apportant un confort acoustique.

 Télécharger le PDF du projet