Boch

Transformation des anciennes faïenceries Boch en un centre d’art et de design de la céramique à la Louvière

Maître d’ouvrage Ville de La Louvière
Lieu La Louvière, Hainaut, Belgique
Programme Réhabilitation de l’ancienne faïencerie Boch en un centre culturel d’art et de design de la céramique.
Date 2012 - 2016
Surface 4500 m2 
Budget 4 650 000 euros HTVA
Photographe Maxime Delvaux

Le projet de reconversion des anciens halls de la faïencerie Royal Boch en centre d’art et de design de la céramique s’inscrit, comme la construction voisine du nouveau musée de la céramique, dans une logique de sauvegarde du patrimoine industriel de la manufacture louviéroise.
Seule une partie des gigantesques espaces à disposition a été choisie en vue d’abriter le programme sans faire obstacle aux liens entre le nouveau musée, la gare de La Louvière Centre et le parc qui les borde.

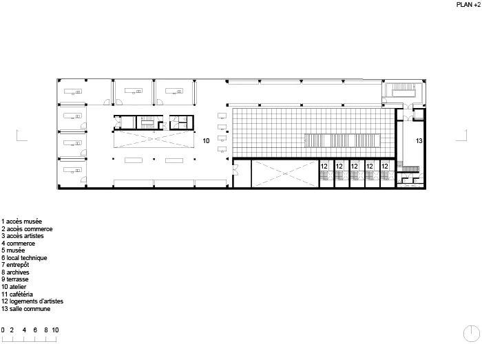
Contrairement à Keramis, qui se veut essentiellement un lieu d’exposition, le projet s’apparentera à un espace dédié à la création. À cette fin, on y retrouve deux fonctions principales suivantes. Dans les anciens locaux réhabilités, la partie « manufacture » qui regroupe, les ateliers d’artistes, les zones de fabrications, les fours ainsi qu’une très belle galerie d’exposition témoin de l’architecture industrielle originelle.
L’autre partie, neuve, est occupée par les fonctions d’accès au bâtiment, un restaurant, et par toutes les facilités pour les artistes en résidence (logements, lieux de vie et lieux de repli).

Architecturalement, la mise en place de ces deux activités se traduit par toute une série de confrontations réunies autour d’un patio ouvert tel un balcon sur le nouveau parc de la cité. C’est le point central du bâtiment autour duquel toute la vie du lieu s’organise. Pour y accéder on traverse un hall extérieur aux proportions volontairement écrasées débouchant sur un escalier baigné de lumière dont le plafond se dérobe et projette le visiteur vers cette terrasse urbaine.

Cette dualité est également structurelle. D’un côté l’espace est constitué de colonnes irrégulières en béton qui se superposent délicatement en s‘affinant d’étage en étage, alors que de l’autre on retrouve des grandes surfaces parfaitement planes qui créent des volumes volontairement bruts.

Elle est également immatérielle. L’usine est habillée d’une peau diaphane qui révèle sa structure et offre une lumière naturelle du Nord constante, idéale pour le travail artistique. Cette robe est ponctuellement percée de regards dirigés vers le paysage urbain environnant. Les logements d’artistes sont, quant eux, complètement introvertis, constitués de paliers disposés en triplex éclairés par un puits de lumière zénithale.

 Télécharger le PDF du projet